LE SPA
MANOIR HOVEY

LE SPA MANOIR HOVEY

Le Spa pays tribute to the historic Manoir Hovey, originally Henry Atkinson’s 1900 summer home inspired by Mount Vernon. Our design references Mount Vernon’s high columns, reimagined as loggias for the main stair, entry portico, and suite balconies, in a contemporary way. An upper colonnade leads to three suites, while a sweeping vault on the west facade guides guests down to the pool level and spa. On the lake side, the colonnade aligns with the existing Manor’s height, with a fieldstone base anchoring it to the landscape. To the east, an outdoor spa circuit with pools, a sauna, and relaxation room connects seamlessly with the natural surroundings.

2023

North Hatley, QC

Client: Manoir Hovey

Type: Renovation

Team: James Macgillivray, Vivian Lee, Marianno Martellacci, Kara Verbeek, Madeline Joo Sun Kim, Ron Noble

Photography: Félix Michaud

Cross-sectional architectural drawing of a multi-story house showing various rooms including bedrooms, kitchen, living areas, and outdoor spaces with trees and people.
A white house entrance with a pointed gate, leading to a corridor with columns, a lantern chandelier, and a view of trees and water in the background.
Living room with wooden ceiling, large window with curtains, sofa, wooden chairs, rug, and a potted plant.
Modern bathroom with a freestanding bathtub, a glass shower room, a white vanity with a mirror, and neutral-toned tiled walls.
Close-up of a modern fireplace with a black frame, gray stone surround, and wooden house on the interior with a potted plant nearby.
A pool area outside a white building with a balcony, lounge chairs, umbrellas, and trees in the background.

Awards

A detailed architectural elevation drawing of a house with a gabled roof, chimney stacks, and a large arched entrance on the right side, featuring doors, windows, and structural elements.
Architectural elevation drawing of a house on a slope, showing the front facade with a pitched roof, chimney, and multiple levels with windows and doors.
Architectural elevation drawing of a multi-story house with a stone foundation, large glass windows, a covered porch with railings, and dormer windows on the roof.
Architectural line drawing of a house on a hillside, featuring multiple levels, large windows, a balcony, and a stone foundation.
Modern bathroom with pink patterned tiles, white vanity with mirrors, gold light fixtures, and wicker baskets for storage.
Minimalist hallway with two woven ottomans, wooden cabinetry, white walls, and a reading nook.
A minimalist massage room with a massage table, neutral color scheme, soft lighting, and simple decor.
A woman in a sauna room with wooden walls, sitting on a bench next to a woodpile heater exposed to sunlight.
A bright, modern sunroom with large windows overlooking a lake and trees, featuring four lounge chairs with white cushions.
Floor plan of a building with multiple rooms including a kitchen, dining area, living rooms, bedrooms, bathrooms, and outdoor patio, with furniture and fixtures outlined.
Architectural floor plan of a building with rooms, bathrooms, staircases, and outdoor patio areas with landscaping.
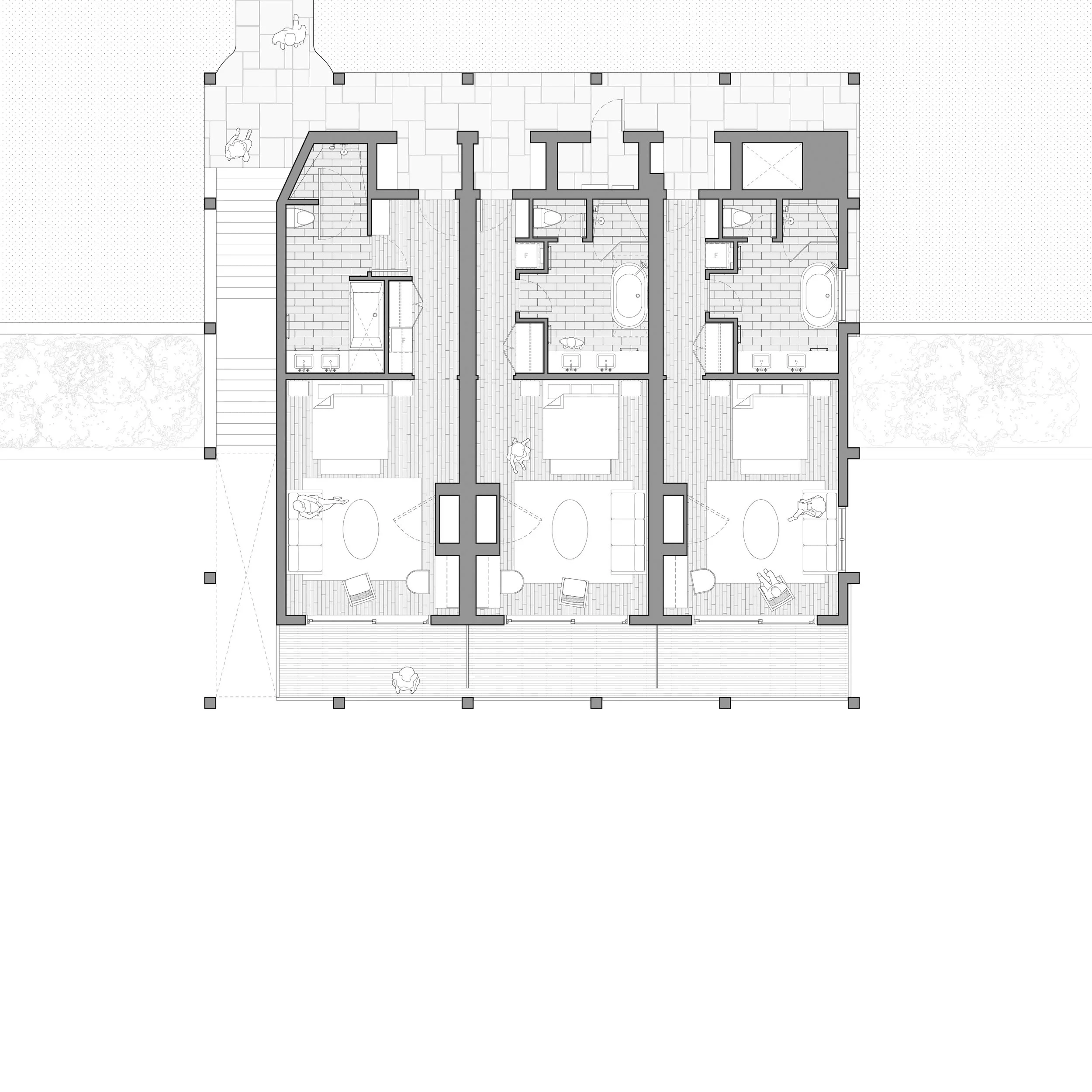
Floor plan of a multi-unit residential building featuring three units, each with a living room, bedroom, kitchen, and bathroom, with outdoor patios and landscaping.
Exterior of a white spa building with a sign reading 'Le Spa Manoir Hovey' and a view of trees and a lake in the background.

Design Architect: LAMAS Architecture Ltd
Executive Architect: Atelier Alan Bellavance
Photography: Felix Michaud, Drew Hadley
Interior Design: LAMAS Architecture Ltd.
Landscape Architect: SWDLA
Contractor: Construction Yves Lessard
Structural Engineer: Dugré Ingénieurs
Civil Engineer: FNX
Mechanical Engineer: CBTEC
Electrical Engineer: CJS Ingénierie
Spa Consultant: Emondo

Modern multi-story house with a stone and white exterior, large windows, and a backyard with stairs leading to a garden, surrounded by trees with autumn foliage.