Oak leaf
retreat

oak leaf retreat

The Oak Leaf Retreat explores the relationship between historical farm buildings and contemporary considerations of sustainability (net zero construction). It seeks to foster a deep relationship between visitors and the surrounding farmland, meadow, forests, and wildlife with an emphasis on environmental stewardship.

The original stone of an old coach house (c. late 1700s or early 1800s) will be reassembled in collaboration with a local stone mason, based on the original plan, using traditional building techniques and a modern reinterpretation of its structure. The coach house will serve as a communal dining and gathering area overlooking the working farm. Two additional structures, a farmhouse and a utility shed, will join the coach house, linked by a nearly invisible glass connector topped with a green roof. Together, they form a retreat designed to welcome agricultural students of and artists-in-residence.

Extensive research has informed the design, drawing from vernacular building practices, sustainable materials, and the history of agricultural architecture. While the exterior embraces tradition, the interiors are more exploratory. Voids are carved into the ceiling planes, channeling natural light deep into interior spaces to create framed moments of arrival and transition. Each room features its own pitched ceiling in order to read as an independent barn form, evoking a sense of individual shelter within the whole.

Ongoing

Athens, ON

Client: Private

Type: New Construction

Team: Vivian Lee, James Macgillivray, Kara Verbeek, Tiffany Wong

Cover render: Studio ISO

An old brick building with a rusty, corrugated metal roof, featuring three arched openings, one with a wooden door and two boarded-up windows, surrounded by overgrown grass and weeds.
Architectural elevation drawings of a modern multi-building complex, including various rooflines, windows, and brick and wood exterior finishes.
Three architectural cross-section diagrams of a house showing attic, bedroom, bathroom, and basement layouts.
Living room with a gray sectional sofa, modern black chaise lounge, and various small coffee tables. Features a large window, a stone fireplace, and a high vaulted ceiling with exposed wooden beams.
Bright, minimalistic interior space with large windows, skylights, and a hallway with multiple arched openings.
Modern kitchen with gray marble countertops, wooden cabinets, and pendant lighting, adjacent to a dining area with stone accent wall and a fireplace, large windows overlooking the outdoors.
Interior view of a modern dining area with a view of the outdoors, featuring a round dining table with six wooden chairs, a green pendant light above, a stone accent wall, and large windows showing a landscape of fields and trees.
Architectural sections of a multi-story house showing ground floor to basement, ground floor to landing, and second floor to attic with kitchen skylight.
Interior view of a modern, wooden staircase with a circular opening at the top, looking up from the bottom of the stairs.
Wooden staircase with an arched opening at the top, ascending between wooden walls.
Interior view of a modern, minimalist staircase with light wood steps and white walls, leading up to a window at the top.
Interior view of a modern staircase with wooden steps and a curved wooden railing, seen from the bottom looking up towards a white ceiling with natural light coming through a window.
Modern wooden staircase with curved design and warm lighting.
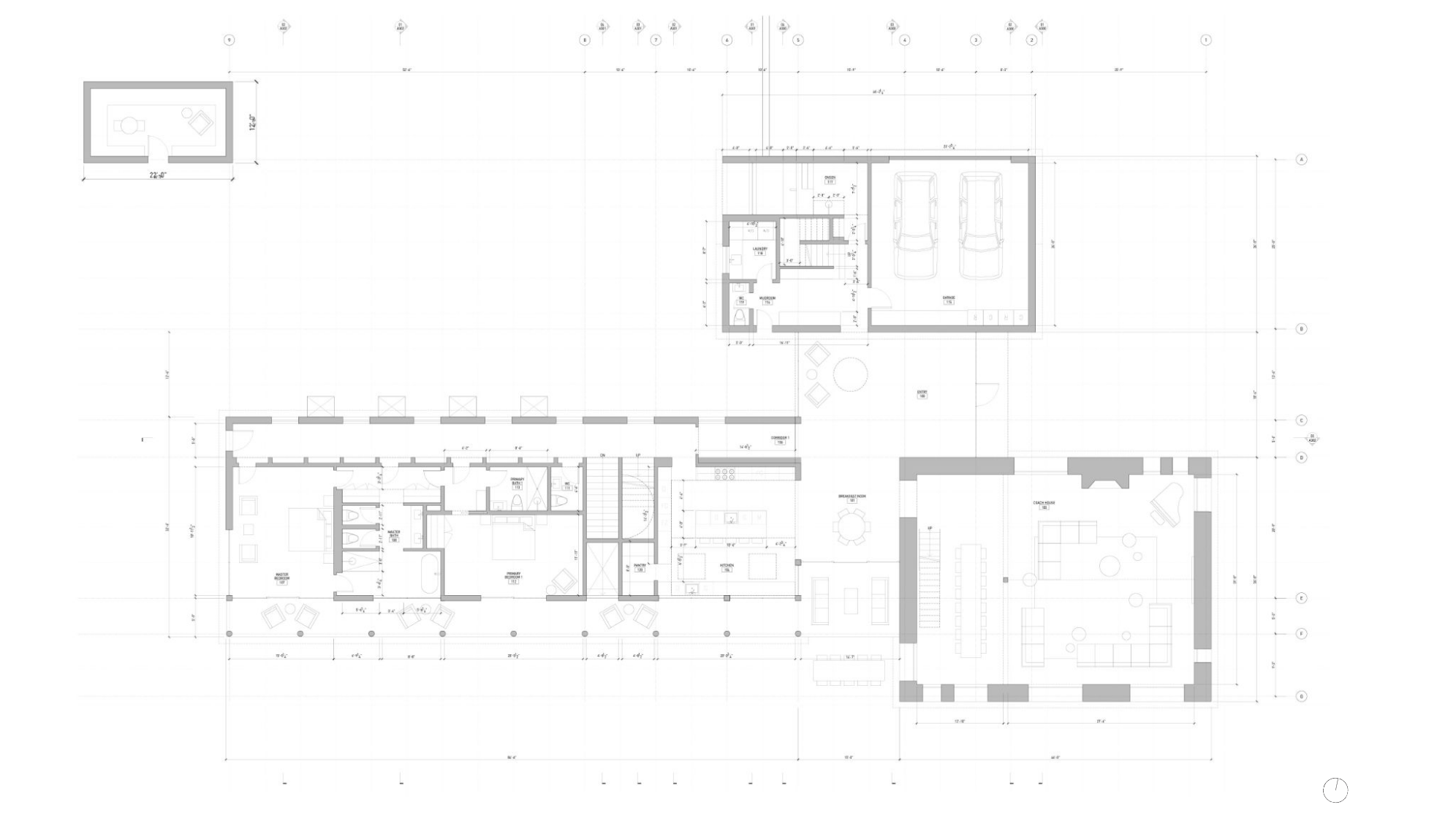
Architectural floor plan of a house with labeled rooms, garage, and outdoor areas, showing dimensions and layout of interior spaces.
Interior modern staircase with wooden steps, white walls, and natural light from a skylight.
A bright, modern hallway with white walls, wooden flooring, and large windows letting in natural light, leading to a view of a green landscape outside.
A modern, minimalistic corridor with built-in wooden bookshelves along one side, light-colored tiled floor, white walls, and a large window at the end showing a view of greenery and sky.
Minimalist bedroom with a large window and sheer white curtains, a bed, and two wooden armchairs with light cushions. There is a small white side table with a glass vase and flower, overlooking a green field and trees outside.
Modern bathroom with a free-standing bathtub, light blue tiled walls and floor, a towel on the wall, a circular wall light, and large glass windows showing an outdoor view.
Empty modern walk-in shower with light blue tiles, a rainfall showerhead, handheld shower, and a glass door.
Modern bathroom with a large wall mirror, light gray tile floor, wooden vanity with integrated sink, wall-mounted faucet, and wall sconces with frosted glass shades on both sides of the mirror.
Modern green tiled bathroom with a large window overlooking a grassy field and trees, with built-in stairs and a bathtub underneath the window.
Next Residential >