TOWNSHIPS
FARMHOUSE

TOWNSHIPS FARMHOUSE

In the eastern townships of Quebec, the courtyard configuration for barns has been used since the mid 19th century for convenience of access and for shelter against the wind.

For this working farm, our first design decision was to take the concept of the “aisle” from barns—essentially a thoroughfare for bringing in materials and livestock--and repurpose it outwards to capture views from the surrounding fields. Because the house is arranged in a courtyard formation it goes back in on itself and the interior spaces can be superimposed onto the background of the landscape in unexpected compositions.

2017

North Hatley, QC

Client: Private

Type: New Construction

Team: Team: Vivian Lee, James Macgillivray, Scott Claassen, Pooja Dalal, Scott Fredricks, Dan Kobran, Nora Leon, Jennifer Ng

Photography : Stéphane Groleau / Laetitia Boudaud

View of residential rooftops with wooden siding and brick chimneys against a clear blue sky.
Front view of a modern barn-style house with weathered wooden exterior, black metal roof, and large windows at sunset.
A person walking past a modern building with weathered wooden siding and multiple windows, under a partly cloudy sky.
A rustic barn with weathered wooden walls and a black metal roof, situated on a rural landscape with a dirt path and blue sky with scattered clouds.

AWARDS & FEATURES

2023
Azure Magazine, "Modern Rural: LAMAS creates an intergenerational home defined by a long stone wall in Quebec’s Eastern Townships" article by Odile Henault, January/February 2023

2019
CNN Business. Bahney, Anna. “Rustic yet modern, these converted barns are a creative’s dream”. March 29, 2019.

2018
Jenkins, Hannah, ed. “Townships Farmhouse” The Canadian House. New York: Images Publishing Group, 2018. pp 172-177

2018
International AR House Awards 2018 Shortlist

2017
Winner of Architizer A+ Award for the category of Residential Private House XL

2017
Dwell Magazine. Birks, Kimberlie. "An Artist and Farmer Work With a Toronto-Based Studio to Build a Barn-Inspired Home". July 2023

View through a glass door showing a modern outdoor area with gravel, dirt patches, and snow remnants, surrounded by weathered wooden walls of a contemporary house with white interior walls and exposed wooden beams ceiling.
Interior view of a staircase with dark wood steps, white walls, a large window showing a tree and cloudy sky outside, and a white railing on the left side.
A young boy sitting at a wooden dining table drinking from a yellow cup with a plate of cookies in front of him, inside a modern kitchen with large windows showing an outdoor view of trees and fields.
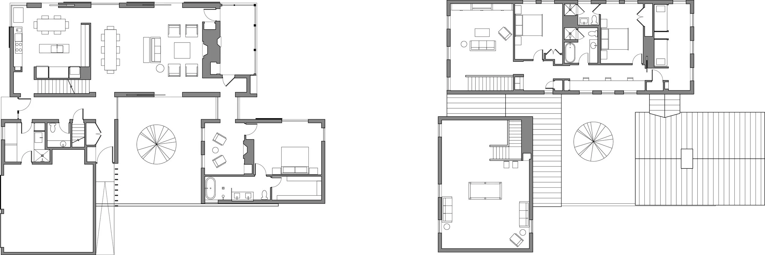
Floor plan of a house showing various rooms including a kitchen, dining area, living room, bedrooms, bathrooms, and staircases.
Interior view of a modern hallway with brick floor, large window on the left, wall with wooden paneling on the right, and glass door at the end with a person standing outside.
View through a doorway into a dining room with a long table and chairs, large sliding glass door at the end, and rustic wooden beams and walls.
A modern two-story house with a weathered wood exterior, a dark metal roof, multiple rectangular windows on the upper floor, and large glass sliding doors on the lower level. Trees without leaves are visible in the background, with the sun setting on the right side of the image.
Next Residential >